7
  • Tipo de propiedad
  • Nave Industrial
  • 3.500
  • Tamaño de área
Destacado Venta
Nave en venta
  • 3.300.000,00€

Título

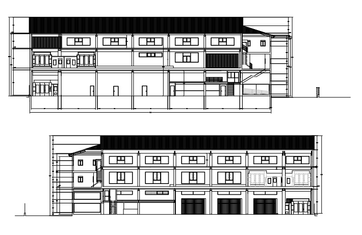
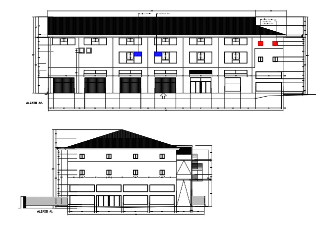
Nave en venta en Polígono Industrial Urtinsa, en Alcorcón.

Está en perfectas condiciones para iniciar una actividad comercial.

Superficie: 3.500 m²

La nave está distribuida en 4 plantas. Todas las plantas tienen acceso para vehículos con rampa exterior.

El Polígono Industrial Urtinsa se encuentra en Alcorcón, Madrid, cerca del casco urbano de la ciudad y es uno de los polígonos industriales más importantes de la región. Está bien comunicado con las principales vías de comunicación, como la A-5, la M-40 y la M-50, lo que facilita el acceso.

El polígono alberga a una gran cantidad de empresas de diferentes sectores, lo que crea un entorno empresarial dinámico y próspero.

El polígono cuenta con una amplia oferta de servicios, incluyendo restaurantes, hoteles, comercios. Hace que sea un lugar atractivo para las empresas que buscan una ubicación con todo lo necesario para su actividad.

Esta nave industrial es una oportunidad de inversión única.

Contacte con nosotros para más información.

Dirección

Google Maps

Detalles

  • Precio 3.300.000,00€
  • Tamaño de propiedad 3.500
  • Tipo de propiedad Nave Industrial
  • Estado de la propiedad Venta

Detalles adicionales

  • Nave Nave

Solicitar visita

Su información

Información de contacto

Pregunte por el inmueble

Anuncios Similares

Comparar listados

Comparar